Terreno à venda

Capuava, Embu das Artes - SP

Código: 1262
  • Venda: R$ 950.000

Venda

R$ 950.000

Anunciante

RODRIGO PEREIRA LUIZ

Telefone

(11) 99465-3311

Ao clicar em "Ver telefone", "Enviar mensagem" ou "WhatsApp", você confirma que concorda com nossos Termos de uso e Políticas de privacidade.


Descrição do imóvel

CAPUAVA - Área 2.996,00 m² c/ PROJETO APROVADO p/ condomínio de 10 casas!

Descrição do imóvel:

Oportunidade para investidores!

Valor estimado do VGV: aguardando informação

Projeto e alvará de construção de condomínio fechado para 10 sobrados.

Toda a questão ambiental (CETESB) finalizada.

O terreno se apresenta limpo, sem vegetação - possui pequena reserva nativa.

Terreno com leve aclive, com linda lista para o verde.

São 2.996,00 m² com 100 metros de frente, esquina da Estrada do Capuava x Passagem Paineiras

Na rua da Escola Bem Viver - Waldorf (aprox. 150 m) e vizinho ao Cond. Vintage.

Altitude aproximada: 850m.

Pronto para iniciar construção!

Descrição do PROJETO APROVADO:

Condomínio:

Condomínio fechado e com muros altos.

10 casas (sobrados).

Rua interna de 8 metros de largura, conforme legislação do Embu das Artes.

Salão de festas com cozinha e banheiro.

Reserva de mata nativa própria.

Rua sem saída.

Condomínio afastado, em rua com diversas casas e chácaras.

Unidades:

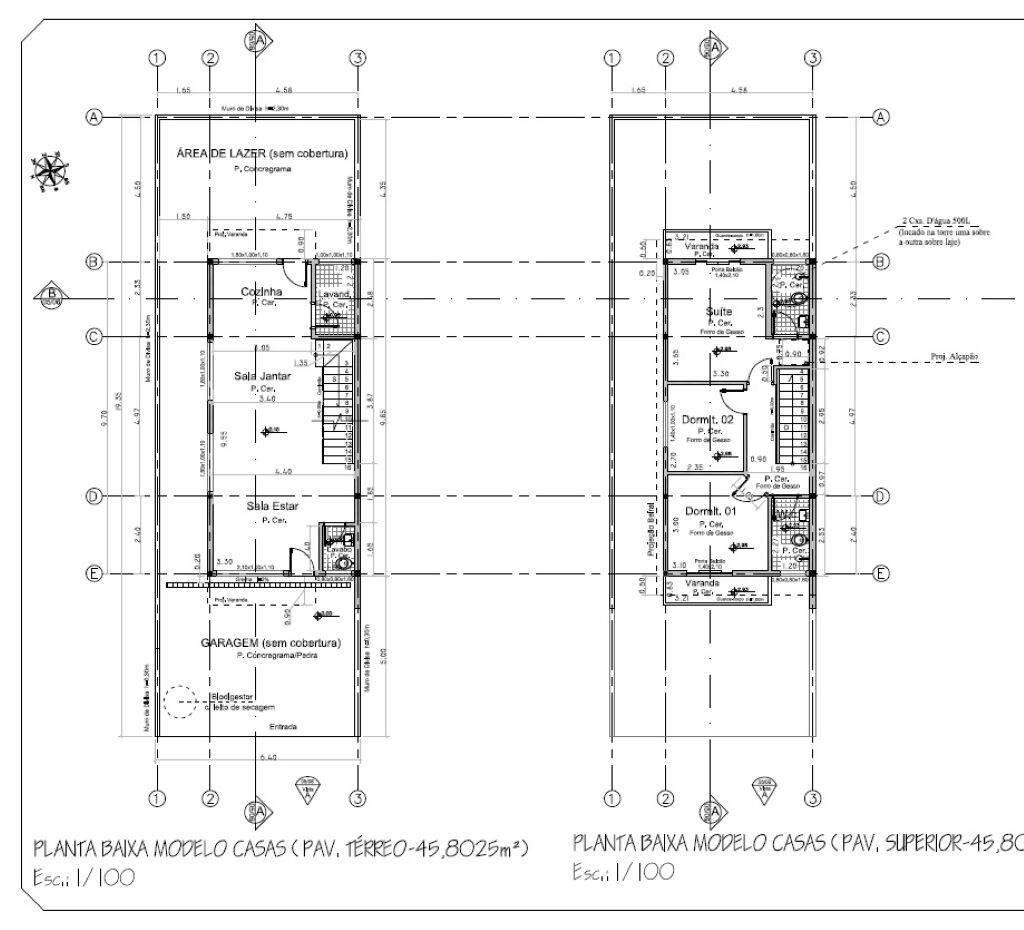
Sobrado c/ 91,60 m² de área.

3 dormitórios, sendo uma suíte.

Vista das suítes para o Arautos do Evangelho de Cotia

Quintal individual com mais de 30m²

2 banheiros + 1 lavabo

Vaga descoberta para 2 carros

Obs: Informações fornecidas e aprovadas pelo proprietário. Sujeitas a alteração sem aviso prévio.

Características do imóvel

Água Encanada

Energia Elétrica

Rede de Esgoto

Rua Asfaltada


Características do imóvel

Responsável pelo anúncio

Nome do anunciante: RODRIGO PEREIRA LUIZ

Telefone:

(11) 99465-3311

CRECI: 262609


Venda

R$ 950.000
Anunciante

RODRIGO PEREIRA LUIZ

Telefone

(11) 99465-3311

Ao clicar em "Ver telefone", "Enviar mensagem" ou "WhatsApp", você confirma que concorda com nossos Termos de uso e Políticas de privacidade.

Visualização no mapa

Capuava, Embu das Artes - SP