Terreno à venda, 6500m²

Badu, Niterói - RJ

Código: 39177
  • Venda: R$ 5.000.000

  • 6500m² Total

  • Área total do imóvel
Venda

R$ 5.000.000

Anunciante

Silvério imóveis

Telefone

(24) 2243-9745

Ao clicar em "Ver telefone", "Enviar mensagem" ou "WhatsApp", você confirma que concorda com nossos Termos de uso e Políticas de privacidade.


Descrição do imóvel

Vendo Terreno em Niteroi.

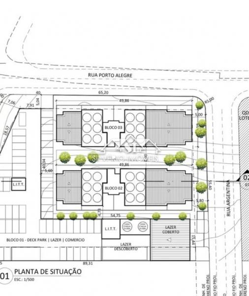
Terreno com projeto aprovado para 180 unidade com dois blocos e 9 andares com 10 unidades por andar, sendo os apartamentos composto por 2 quartos e 3 quartos ambos com suíte e área de lazer completa. Fica à 15 minutos da praia de Piratininga e região oceânica.

Podendo ser oferecido à Investidores, Incorporadores, Construtoras e etc...


Características do imóvel

Responsável pelo anúncio

Nome do anunciante: Silvério imóveis

Telefone:

(24) 2243-9745

CRECI: 7222


Venda

R$ 5.000.000
Anunciante

Silvério imóveis

Telefone

(24) 2243-9745

Ao clicar em "Ver telefone", "Enviar mensagem" ou "WhatsApp", você confirma que concorda com nossos Termos de uso e Políticas de privacidade.