Depósito-Galpão-Armazém para alugar, 4865m²

Tamboré, Barueri - SP

Código: GL00176
  • Aluguel: R$ 160.000

  • 5075m² Total

  • Área total do imóvel
  • 4865m² Útil

  • Área útil do imóvel
Aluguel

R$ 160.000

Anunciante

Engeplac Corretora de Imóveis

Telefone

(11) 4191.3300

Ao clicar em "Ver telefone", "Enviar mensagem" ou "WhatsApp", você confirma que concorda com nossos Termos de uso e Políticas de privacidade.


Descrição do imóvel

Galpão

Alphaville - Barueri - SP

Av. Tamboré 1113

Área construída 4.865,99 m², com cozinha, refeitório, vestiário, ambulatório

Área terreno 5.075,00 m²

Pavimento Térreo - 3.129,99 m²

Guarita 21,53 m²

Cabine Primária 29,03 m²

Barracão 3.079,43 m²

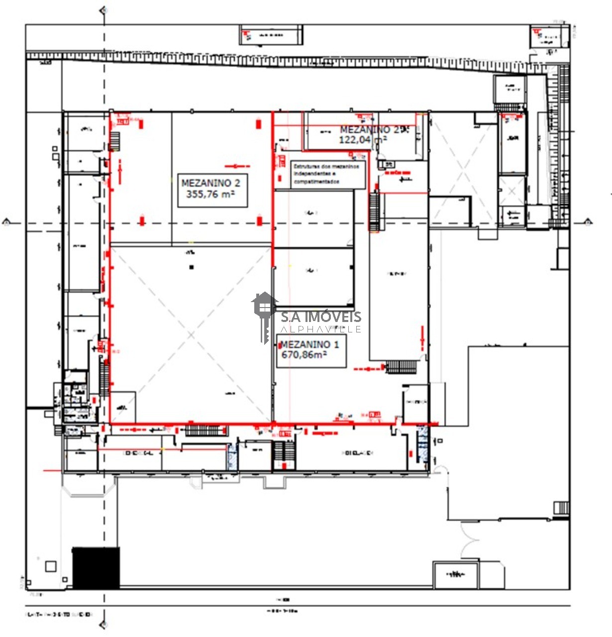
Pavimento Superior - 1.736,00 m²

Barracão 534,67 m²

Depósito 28,00 m2

Mezanino 1 - 670,86 m²

Mezanino 2 - 122,04 m²

Mezanino 3 - 355,76 m²

Sala conferência 15,29 m²

Mezanino 9,38 m²

Valor aluguel R$ 160.000,00

21/02/2026


Características do imóvel

Responsável pelo anúncio

Nome do anunciante: Engeplac Corretora de Imóveis

Telefone:

(11) 4191.3300


Aluguel

R$ 160.000
Anunciante

Engeplac Corretora de Imóveis

Telefone

(11) 4191.3300

Ao clicar em "Ver telefone", "Enviar mensagem" ou "WhatsApp", você confirma que concorda com nossos Termos de uso e Políticas de privacidade.